Copyright © 1983, 2001, 2004 Kazuto Matsumura. All rights reserved.

5: Missä asut?


1)Missä asut?
— Asun Helsingissä / Tokiossa / keskustassa.
— Asun omakotitalossa / rivitalossa / kerrostalossa.
— Asun yksiössä / kaksiossa.
Minulla on oma osake.
Asun vuokrahuoneistossa.
Missä kerroksessa asut? — Asun viidennessä kerroksessa.
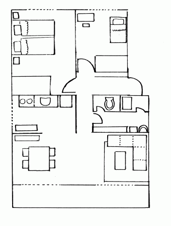
2)Millainen huoneisto teillä on?
— Meillä on kolme huonetta ja keittiö.
Onko talossa hissi?
Montako neliömetriä huoneistossa on?
— Huoneisto on tilava, 70 m² (=neliömetriä).
Olohuone on kodikas ja valoisa. Siellä on kukalliset tapetit ja ikkunassa vaaleat verhot. Olohuoneessa on sohvakalusto ja kaunis matto.
Keittiö on aika pieni. Siellä on kaasuhella, tiskipöytä ja iso jääkaappi. Keittiössä laitan ruokaa ja tiskaan astiat.
Makuuhuone on hieman kolea. Siellä on parivuode, yöpöydät ja pöytälamput.
Ruokailuhuoneessa on ruokapöytä, tuolit ja astiakaappi.
Kylpyhuoneessa on amme ja suihku, pesuhuoneessa siivouskomero, pesukone ja pesuallas. Edessä on peili. Pyykin pesen pesukoneessa ja ripustan kuivumaan parvekkeelle.
Huoneistossa on paljon komeroita.
Huoneistossa on keskuslämmistys.
Huoneiston vuokra on 2000 markkaa kuussa.
3)Millainen asunto sinulla on?
  • Makuuhuone:
    • parivuode
    • yöpöytä
    • komero
  • Lastenhuone:
    • kirjoituspöytä
    • sänky
    • komero
  • Eteinen:
    • naulakko
  • Keittiö:
    • tiskipöytä
    • hella
    • jääkaappi
  • Ruokailuhuone:
    • astiakaappi
    • pöytä
    • tuoli
  • Olohuone:
    • sohvakalusto
    • matto
  • Parveke
  • WC (vessa)
  • Kylpyhuone:
    • amme
    • suinku
  • Pesuhuone:
    • pesuallas
    • pesukone
    • siivouskomero
asunto

Sanat

aikatime
ammetub
astiakaappiastia-kaappi ‘cupboard’
astiatastia-t ‘dishes’ cf. astia ‘container’
asunasu-n ‘I live’ cf. asua ‘to live’
asuntoasu-nto ‘residence’
asutasu-t ‘you (sinä) live’
edessäede-ssä ‘in front (of)’
eteinenentrance hall
hellarange
HelsingissäHelsingi-ssä ‘in Helsinki’ cf. Helsinki
hiemana little, somewhat
huoneistohuone-i-sto ‘apartment’ cf. huone ‘room’
huoneistonhuoneisto-n
huoneistossahuoneisto-ssa ‘in the apartment’
huonettahuonet-ta cf. huone
ikkunassaikkuna-ssa ‘in the window’ cf. ikkuna ‘window’
isobig
jääkaappijää-kaappi ‘refrigerator’
kaasuhellakaasu-hella ‘gas range’
kaksiossakaksio-ssa ‘in a two-room apartment’ cf. kaksi
kaunisbeautiful
keittiökitchen cf. keittää ‘to cook’
keittiössäkeittiö-ssä ‘in the kitchen’
kerrostalossakerros+talo-ssa ‘in an apartment house’ cf. kerrostalo ‘apartment house’
keskuslämmistyskeskus+lämmitys ‘central heating’
keskustassakeskusta-ssa ‘in the center (of town)’ cf. keskusta ‘center’
kirjoituspöytäkirjoitus+pöytä ‘writing desk’
kodikaskodi-kas ‘cozy, homey’ cf. koti ‘home’
koleachilly
komeroitakomero-i-ta ‘closets’ cf. komero
kuivumaankuivu-ma-an ‘into drying’ cf. kuivua ‘to get dry’
kukallisetkuka-llise-t cf. kukallinen ‘flowery’; kukka ‘flower’
kuussakuu-ssa ‘in a month’ cf. kuu ‘moon, month’
kylpyhuoneessakylpy+huonee-ssa ‘in the bathroom’ cf. kylpyhuone
laitanlaita-n ‘I make’ cf. laittaa ‘to make, prepare’
lastenhuonelas-ten+huone ‘children‘s room, nursery’
makuuhuonemakuu+huone ‘bedroom’
markkaamarkka-a cf. markka '(Finnish) mark’
mattocarpet
millainenwhat kind of...?
montakomonta-ko ‘how many...?’ cf. monta ‘many’
naulakkocoatrack
neliömetriäneliö+metri-ä cf. neliömetri ‘square meter’
olohuoneolo+huone ‘living room’
olohuoneessaolohuonee-ssa ‘in the living room’
omakotitalossaoma+koti+talo-ssa ‘in a single-family house’ cf. omakotitalo
osakestock
parivuodepari+vuode ‘double bed’
parvekkeelleparvekkee-lle ‘on to the balcony’ cf. parveke
peilimiller
pesenpese-n ‘I wash’ cf. pestä ‘to wash’
pesuallaspesu+allas ‘washbasin
pesuhuoneessapesu+huonee-ssa ‘in the washing room’ cf. pesuhuone
pesukonepesu+kone ‘washing machine’
pesukoneessapesukonee-ssa ‘in the washing machine’
pyykinpyyki-n cf. pyykki ‘washing’
pöytätable, desk
pöytälamputpöytä+lampu-t ‘desk lamps’ cf. pöytälamppu
ripustanripusta-n ‘I hang’ cf. ripustaa ‘to hang’
rivitalossarivi+talo-ssa ‘in a terraced house’ cf. rivitalo
ruokaaruoka-a cf. ruoka ‘food, meal’
ruokailuhuoneessaruoka-ilu+huonee-ssa ‘in the dining room’ cf. ruokailuhuone
ruokapöytäruoka+pöytä ‘dining table’
sielläthere cf. se
siivouskomerosiivous+komero ‘closet for scrubbing things’
sinullasinu-lla ‘with you’ cf. sinä
sohvakalustosohva+kalusto
suihkushower
sänkybed(stead) cf. vuode
talossatalo-ssa ‘in the house’ cf. talo
tapetittapeti-t ‘wallpaper’ cf. tapetti
tilavaspacious, roomy
tiskaantiskaa-n ‘I do the dishes’ cf. tiskata ‘to do the dishes’
tiskipöytätiski+pöytä
TokiossaTokio-ssa ‘in Tokyo’
tuolittuoli-t ‘chairs’ cf. tuoli
vaaleatvaalea-t cf. vaalea ‘light, pale’
valoisalight, well-lighted
WCwashroom, toilet, lavatory
verhotverho-t ‘curtains’ cf. verho
vessacolloquial form of WC
viidennessäviide-nne-ssä ‘in the fifth’ cf. viides ‘fifth’
vuokrarent
vuokrahuoneistossavuokra+huoneisto-ssa ‘in a rental apartment’ cf. vuokrahuoneisto
yksiössäyksiö-ssä ‘in a one-room apartment’ cf. yksi
yöpöydätyö+pöydä-t ‘bedside tables’ cf. yöpöytä